賃貸/一戸建鳥取市浜坂




種目 | 一戸建 |
---|---|
物件名称 | 鳥取市浜坂 |
賃料 | 60,000円 |
所在地 | 鳥取市浜坂 |
校区 | 浜坂小学校/中ノ郷中学校 |
交通 | 最寄りバス停/東ひばりヶ丘停 徒歩4分 |
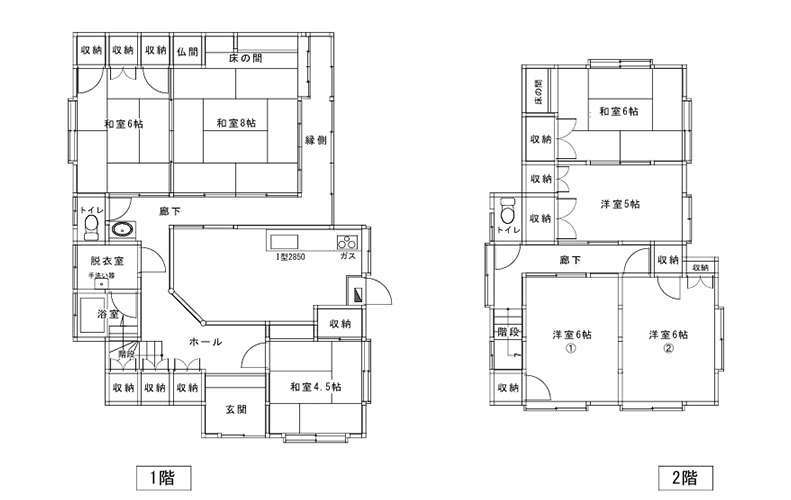
建物面積 | 156.21㎡(約47.25坪) |
築年月 構造 | 1993年(平成5年)7月 |
駐車場 | 有、1台無料、軽自動車程度2台目(軽)は近隣別途 |
敷金/礼金 | 敷金 2ヶ月(12万円)/礼金 1ヶ月(6万円) |
現況 | 空家 |
引渡 | 相談 |
間取り | 7DK/地上2階建 |
大規模改修 | 2025年8月 |
用途地域 | 第一種中高層住居専用地域 |
設備 | 都市ガス、エアコン、トイレ2箇所、温水洗浄便器、システムキッチン、シャワー付き洗面化粧台、駐車場 |
契約の種類・期間 | 2年 更新有 |
管理者 | 株式会社オオヒロ |
取引態様 | 貸主 |
備考 | エアコン・照明器具は残物扱いです 退去時畳の表変え要 日本セーフティー保証契約・借家人賠償保険加入をお願いします ペット不可 |
